Descrizione
Via Scoglio di Quarto, 3 – Monolocale ristrutturato in stabile d’epoca – Ideale studio o investimento.
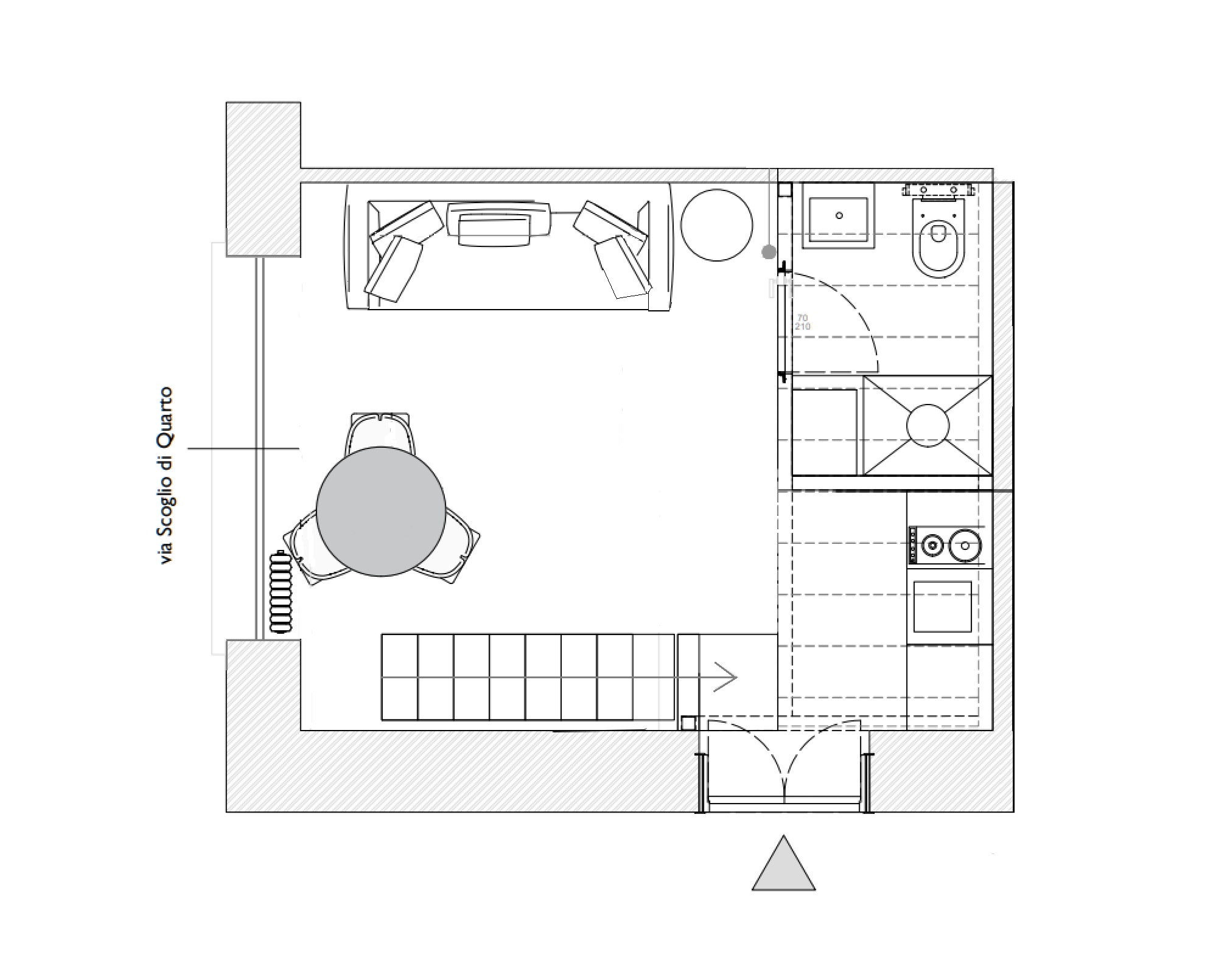
All’interno di un elegante stabile d’epoca signorile, proponiamo in vendita un monolocale di 28 mq catastali, attualmente accatastato A/10 (ufficio).
Lo stabile è sottoposto a vincolo storico-artistico del Ministero dei Beni Culturali, elemento che ne tutela il pregio architettonico e ne valorizza il contesto.
L’immobile è stato recentemente ristrutturato e non è mai stato abitato.
Finiture di qualità: parquet, bagno realizzato con materiali di prima scelta, porte e arredi su misura, climatizzazione caldo/freddo, infissi con triplo vetro, impianti certificati.
Soluzione pronta all’uso, ideale come studio professionale, ufficio di rappresentanza o investimento in una delle zone più richieste di Milano.
Classe energetica D – EPgl,nren 657,87
Libero al rogito.
Con l’adeguamento del Comune di Milano al Decreto Salva Casa (L. 105/2024) potrà essere valutata la possibilità di trasformazione in residenziale, nel rispetto dei requisiti previsti dalla normativa vigente.
Attualmente il Comune non ha ancora completato l’iter di adeguamento procedurale.
€ 195.000






































