Descrizione
Via Pastorelli, 5 – A pochi passi dai Navigli ma al riparo dalla movida, quindi ideale per chi cerca tranquillità senza rinunciare alla comodità dei servizi.
In una palazzina recente del 2012, proponiamo in vendita una soluzione che oggi rappresenta una scelta intelligente:
la classe energetica A, che consente l’accesso ai mutui green, con condizioni più vantaggiose.
L’appartamento, di circa 100 mq, si trova al secondo piano ed è caratterizzato da una doppia esposizione che garantisce luminosità🔆 durante tutto l’arco della giornata.
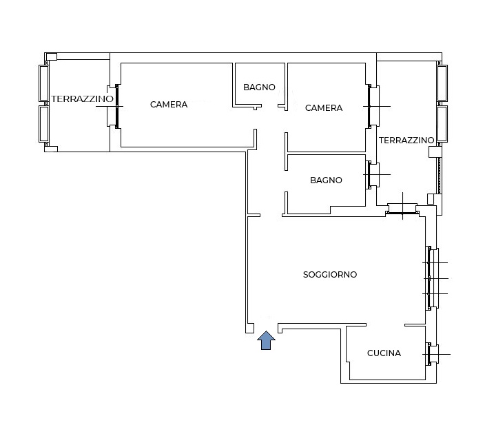
Gli spazi sono ben distribuiti e funzionali:
✔️ingresso su soggiorno con accesso al terrazzino di circa 12 mq
✔️cucina separata
✔️disimpegno
✔️prima camera con accesso al secondo terrazzino di circa 8 mq
✔️seconda camera con accesso allo stesso terrazzo del soggiorno
✔️doppi servizi di cui uno finestrato
✔️ampia cantina di circa 9 mq
Tutte le camere hanno accesso diretto agli spazi esterni🌿, un dettaglio sempre più raro e richiesto, che rende la casa ariosa e vivibile in ogni ambiente.
Riscaldamento e raffrescamento a pavimento con sistema di deumidificazione, che mantiene una temperatura uniforme e un’umidità sempre controllata.
Ventilazione meccanica controllata (VMC) con ricambio continuo dell’aria, che garantisce ambienti salubri, riduce la presenza di umidità e contribuisce a filtrare polveri sottili e agenti inquinanti.
- Tripli vetri con struttura legno interno e alluminio esterno per un isolamento termico e acustico elevato
- Tapparelle elettriche e zanzariere
- Impianto di allarme
- parquet
- sanitari sospesi
Possibilità box auto 🚘 di circa 15 mq a € 35.000
€ 695.000
LIBERO A SETTEMBRE
Caratteristiche
- Doppia esposizione
- Porta blindata
- Parquet
- Aria condizionata
- Tapparelle motorizzate
- Cantina di proprietà
- Riscaldamento autonomo
- Impianto di allarme
- Terrazzo
- Ripostiglio
- Possibilità box
- Mutuo agevolato
- Arredato
- ascensore
- Zanzariere
- Cucina arredata
- Doppi servizi
- Ventilazione meccanica controllata
- Tripli vetri
- Cappotto esterno
- Videocitofono





















